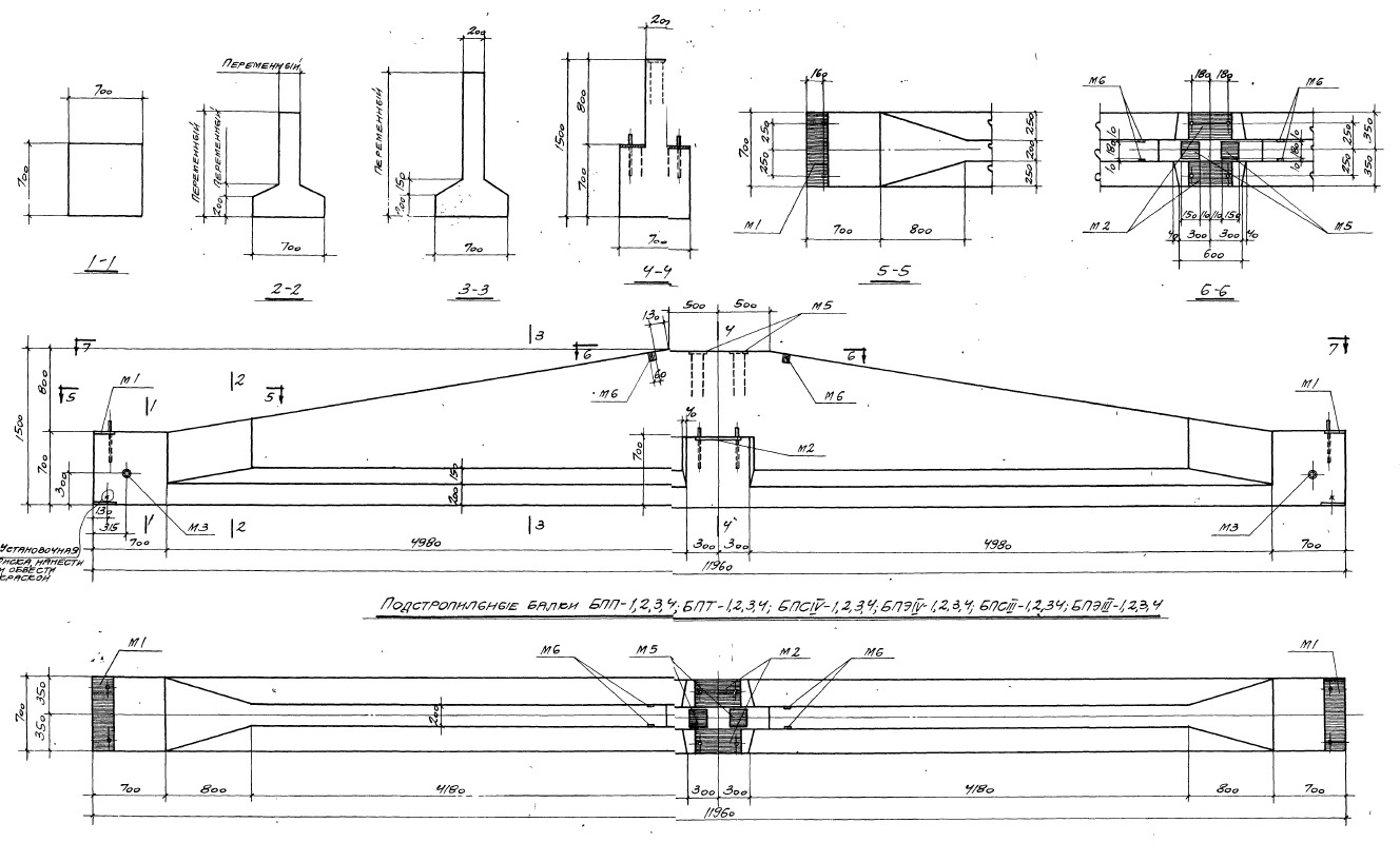
Балка подстропильная БПС III-2 к представляет собой железобетонный элемент, который используется для создания каркаса кровли здания. Она обладает высокой прочностью и устойчивостью к воздействию различных нагрузок, что делает ее незаменимым элементом при строительстве крыши.
Балка подстропильная БПС III-2 к применяется в строительстве жилых, коммерческих и промышленных зданий. Она используется для создания каркаса кровли, обеспечивая необходимую жесткость и прочность конструкции. Балки подстропильные широко применяются в строительстве как один из основных элементов кровельной системы.









